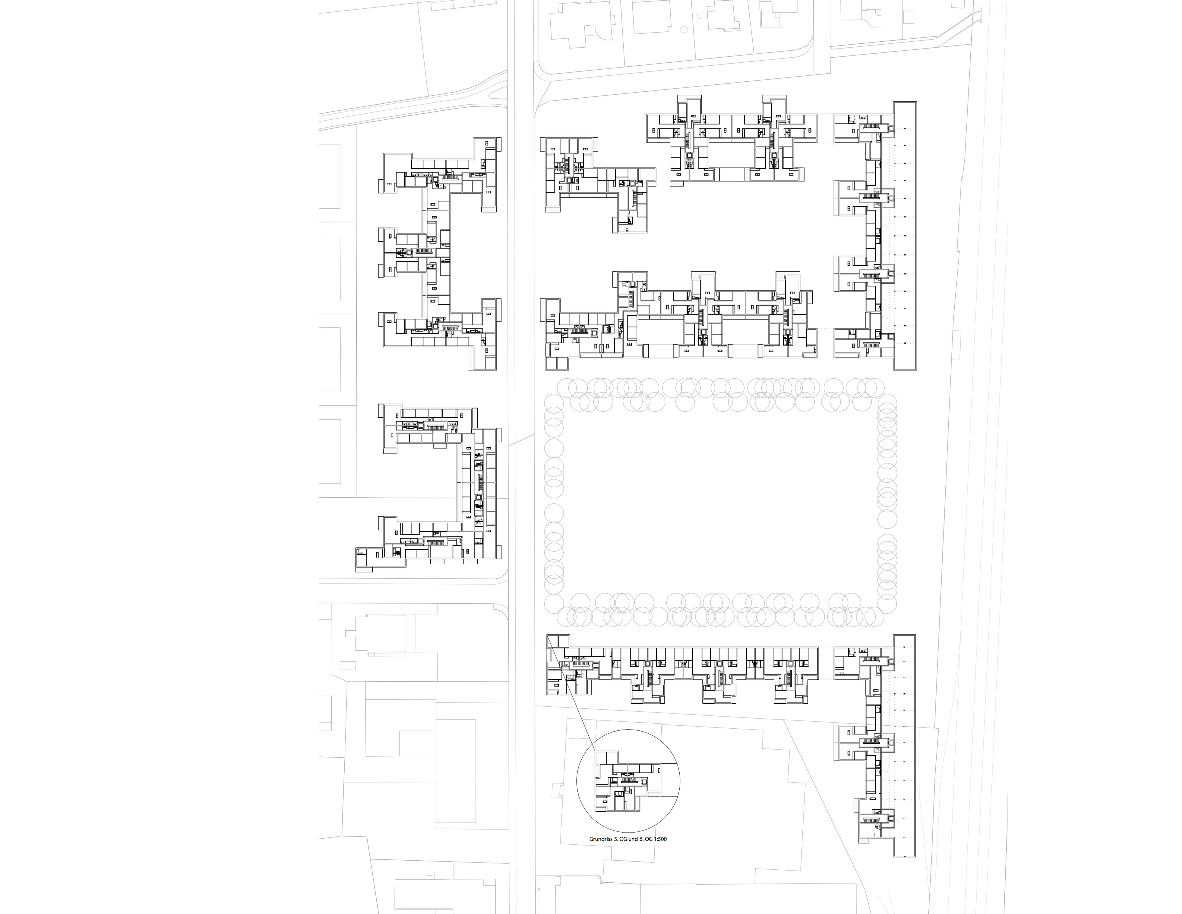
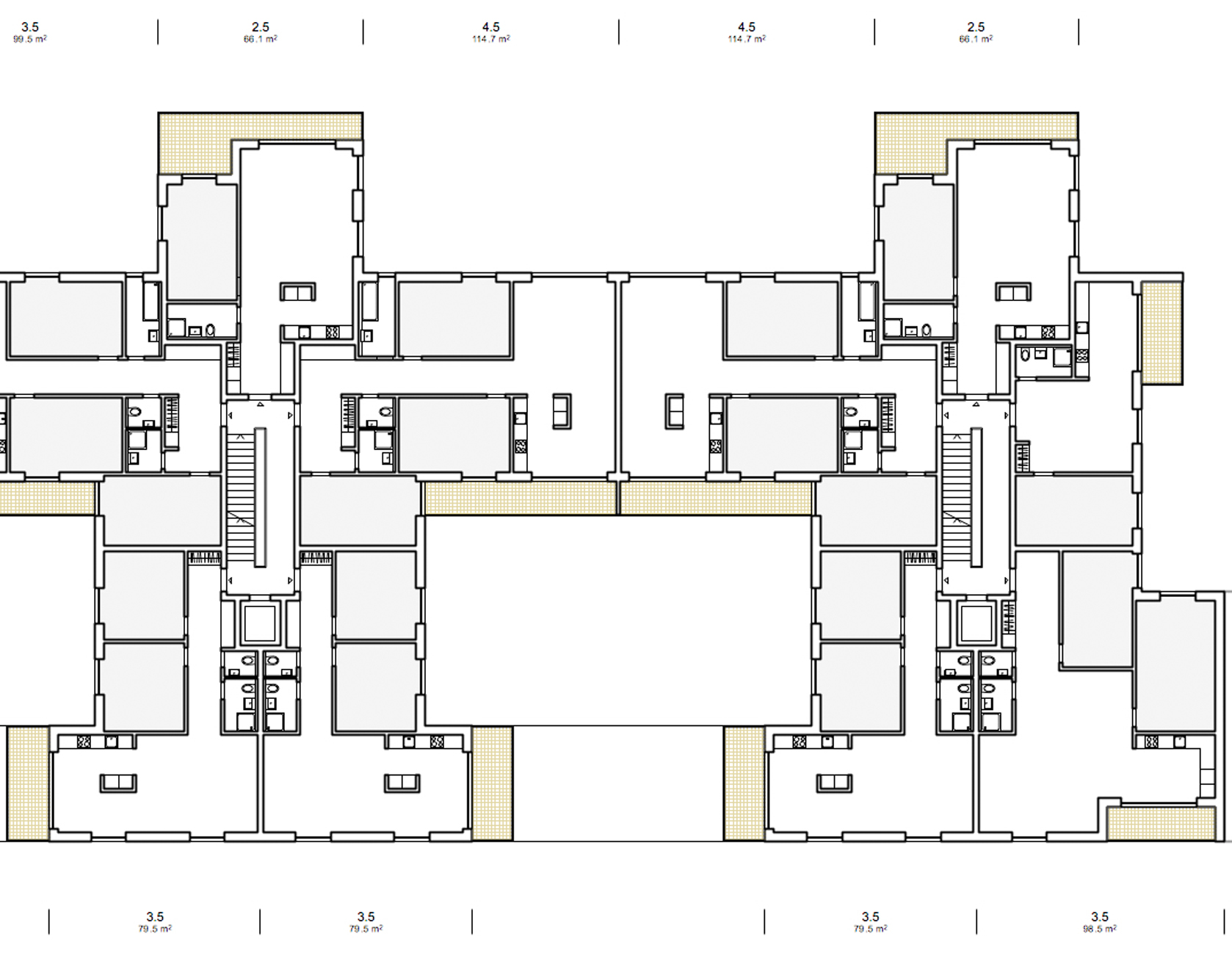
W8

Kindlimann Areal, Wil SG
Studienauftrag 2015, 1.Rang

Wettbewerb: Boris Hämmerli, Marein Gljzen, Jan Schmid